top of page
Junas
Nature de l'Opération : Réhabilitation d'une maison de maître en gîte familial.
Maîtrise d'ouvrage : privée
Mission : mission complète
Localisation : Junas (Gard)
Surface : 250 m²
Année de livraison : 2016
Montant des travaux : 180 000 € TTC
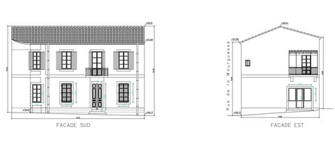
Description : Réhabilitation d'une maison de maître du début du XX° siècle.
L'objectif du projet a été de conserver l'âme de la maison, son style, son histoire; mais aussi en lui donnant une 2ième vie au XXI° siècle.
L'ensemble se compose d'une grande pièce de vie avec coin baby foot, une cuisine, une salle à manger et une bibliothèque.
La grande cage d'escalier dessert 5 chambres indépendantes et 2 supplémentaires commandées, ainsi que 3 belles salles de bains.
bottom of page









