top of page
Villetelle
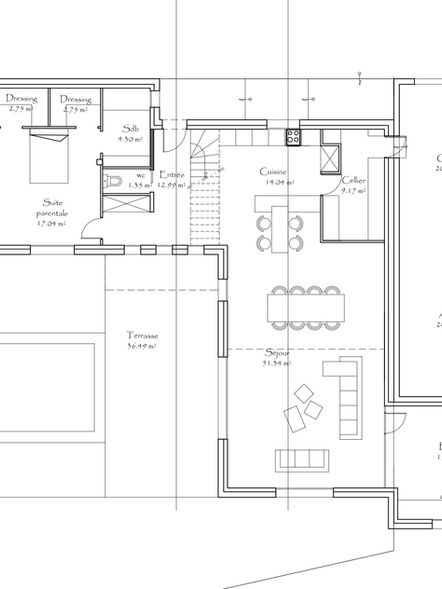
Nature de l'Opération :Construction d'une villa.
Maîtrise d'ouvrage : Privée
Mission : Permis de construire
Localisation : Villetelle (Hérault)
Surface : 125,39 m²
Année de livraison : 2020
Montant des travaux : /
Description :Construction d'une maison contemporaine avec piscine.La couverture sera en toiture terrasse. Les protections solaires seront réalisées en structure métallique et ventelles bois
bottom of page









